产品目录
推荐文章
- 牙科学石膏产品线固化膨胀伸长仪——三角形截面槽
- 细节再现工装、细节再现器具、划线试验块
- 稠度试样材料量取器,稠度试验材料的量取器
- 圆柱形牙科银汞合金试样的模具
- 制备赫兹载荷强度降低腐蚀试验用圆片试样的模具
- 显微硬度测量试样模具
- 腐蚀试验装置、牙科银汞合金浸泡腐蚀试验机
- 物理完整性试验器具、牙根管充填尖物理完整性试验夹具工作
- 牙科学水基水门汀工作时间和固化时间测试仪
- 牙本质通透性测量装置、牙本质通透性测量仪
联系我们
联系人:王经理
联系电话:13120992305
客服QQ:1552956819
公司地址:上海市松江区洞泾镇长兴东路1586号
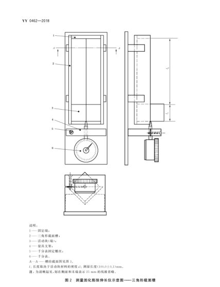
牙科学石膏产品线固化膨胀伸长仪——三角形截面槽
牙科学石膏产品线固化膨胀伸长仪-三角形截面槽
符合标准:
YY/T 0462-2018
技术参数:
(1)三角形截面槽,见图2,图3,图4.由耐腐蚀的金属材料制成(如不锈钢或黄铜合金),能形成长(100.0±0.1)mm的试样。仪器与测量装置固定,使之能测定0.01mm的长度变化,并对试样施加不大于0.8N的测试力。样本槽的内截面应为一等腰三角形,两内截面边长(30士1)mm,夹角为90°槽的一端为封闭固定的,另一端为一可移动的质量为(200士10)g的活动块。在槽的内表面划出一条水平线,使三角形的边长为(25士1)mm。


本文地址:/ndetail/1915.html
- 上一篇:细节再现工装、细节再现器具、划线试验块
- 下一篇:没有了
相关文章
-
2024-09-27
依据标准:QB/T 2155,QB/T4116-2010&n···
-
2024-09-29
用途描述熨烫升华色牢度仪是一种专门用于测试各种纺织品耐熨烫升···
-
2024-09-06
一,用途主要用于医用球囊、充气球囊、扩张球囊、硅胶球囊、呼吸···
-
2024-09-05
一、功能与定义核心作用通过量化切割力值,评估刀片能否高效···
-
2024-09-06
导管柔顺性测试仪是评估医用导管在模拟血管环境中弯曲变形能力的···
-
2025-06-02
仪器应用波纹板式脱硝催化剂磨损率测试仪是专门用于评估波纹板式···
-
2024-09-30
1、耐磨损性 在陶瓷磨屑中运动的磨损试验 试验目的是模拟手表···
-
2024-09-21
仪器用途∶对浮力体材料(如气囊、泡沫塑料、木棉囊等)及救生衣···
-
2024-09-23
一、测试原理及设备特点测试原理:手套完整性测试仪是采用压差衰···
-
2024-09-02
生产的系列医用注射针(器)、输液针(器)、缝合针(线)测试仪···



